[PR]上記の広告は3ヶ月以上新規記事投稿のないブログに表示されています。新しい記事を書く事で広告が消えます。
今までの詳細打合せで変更された内容についての
追加変更見積り書の確認と工事発注書(だったかな?)へ捺印
あと、地鎮祭についての打合せに行ってきました。
見積りの方は、施主支給を増やしたりして、いろいろとダイエットに挑戦したものの
結局は100万強の増額・・・・
建築面積で1.2坪 延べ床で2.5坪減らしたのになんでやねん
内容をしっかり見てみると、主な要因は以前にも書いたように
基礎の変更とか外装材の変更による増額分
後はバカほど気合を入れた1階洗面
(給排水から電気・小物・家具工事まで全て入れて100万強。本当にバカかもしれない・・・)
以前の概算に比べて100万ぐらいは減ったので、そんなもんかな~
いかん 金銭感覚が完全に麻痺してる・・・
それにしても驚いたのが、玄関ポーチの柱
リカメキシ巻きでなんと1本6万円!!
Iさんから高いですよ~と言われていたが、まさかココまでとは・・・・
(家が完成したら、6万円ってでっかく値札貼ったろかな(笑))
本来ならこれで納得したら、発注書にサインと捺印で完了なのだが
この期に及んでエアコンを1台減らすと宣言!!
2階の外壁色をマホガニーブラウンに変更!!!
(これは値段の変更はないが)
詳細打合せ完了からまだ1週間しか経ってないのに
本当に困った施主である・・・(^_^;)
Aさんはまだ今の時点では変更出来ますからと
笑顔で言っているが、そのうち笑顔が引きつってきたりして(^^)
可能な限りすることにしました。その内容をポチポチと
一番最初に手掛けたのは、照明・カーテンでした。
以前にも書きましたが、これが結構いい値段になっていて
ネットで調べると、結構良いものが安く売ってます。
(ただ、種類が膨大な為探すのが大変ですが
安くするには手間を惜しんではいけませんね)
電気・照明は設置するに際し、電気工事士の資格が必要なものもありますが
居室に関しては、引っ掛けシーリングまで施工してもらえれば
後は自分達で設置できます。
(これまた、労力を惜しんではいけませんね)
我が家の照明は、玄関ホール・リビング・ダイニング・1階和室・主寝室・子ども部屋×2の
合計7ヶ所を施主支給とし、2階部分は今使っているものを流用することにしました。
自分達で同じものを購入したとしても、約30万の減額です。
窓回り(カーテン)は、リビング・ダイニング・子ども部屋で
スウェーデンハウスクラブのオマケ(30万円のサービス)
を使いきったので、それ以外は施主支給へと変更します。
嫁様も今使っているカーテン(結構良いヤツだったはず)
を作り直すと言ってくれてますので、その努力に感謝しながら、
諦めていたウッドブラインドをコソット調達出来そうです。(^_^;)
後はエコキュートが格安で手に入るので、これも施主支給といきたかったのですが
こちらの方は、過去にトラブル(欠品や納期遅延などなど)が続出したらしく
神戸支店ではNGとの事で、残念!!
うまく行けばこれでも30万以上減額できたのにな~
今回の打合せをもって、詳細打合せは終了しました
今までの打合せで決めた事項の確認から始まり
雨樋・バルコニー手すりの色まで、細部いたるまでの確認・決定を行い
契約時に一旦出ている金額から、1項目ずつ増減の確認をしていったのですが
契約時のプランと今のプランでは全く別ものとなっていて
何だかよくわかりません
(契約から時間が空き過ぎるのも問題ですな~)
結局分かったのは、180万程の増額(-_-;)
メールで事前に聞いていたので、覚悟はしていたが
なかなか厳しい現実・・・・
資金繰りを見直して、何とか行けそうな感じなのだが
抑えるべき所は抑えたいので
下水の分流方式の廃止
照明・カーテンの施主支給部分の増加などなど行い
多少のダイエットをしてみました。
(詳細は後日UPする予定です)
あとはIさんから、最終金額の正式提示を待ち
あとは、着工日を待つのみ!!
と言いたいところですが
良く考えると、外構がまだ何も決まっていない・・・・
Iさんもその辺は分かっており(そりゃそうだわな)
何パターンか、プランと金額を後日提案してくれます。
全員が顔をあわせての打合せは今回で終了ですが
まだまだ打合せは続くのでした・・・・
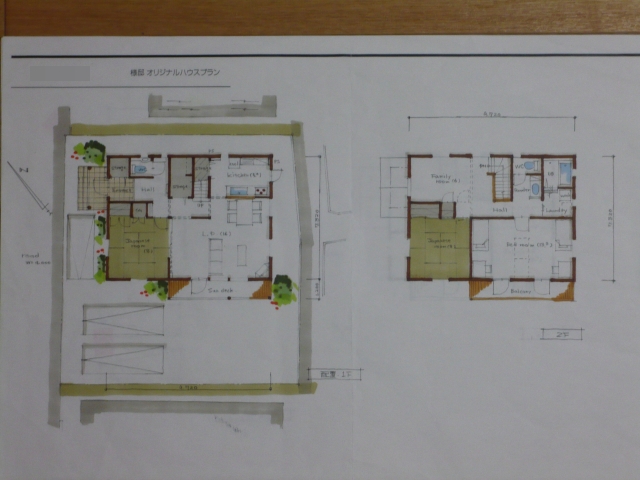
ここらで過去を振り返る意味で、間取りの変遷を御紹介
冬暖かいという噂を聞きつけ 冷やかしから始まったSWHとのお付き合い
その間 あーでもない こーでもないと思いつきのままに
何度も間取り図を描いてもらいました
本当にタチの悪い客であったことは間違いないでしょう。
しかし、こちらも一生一度の買い物、本当に真剣です。
「これが仕事ですから」と嫌な顔一つせずに
丁寧に何枚も描いてくれたIさんに感謝!!

設計を外注に出さずに自社で賄うメーカーだからこそ出来たことでしょう。
それでは、はじまり はじまり
これの前にも1枚あったと思うのですが、行方不明(-_-;)
この時点での最大の要望は、リビングは南面・和室とリビングの1体感
ここでのNGポイントは
玄関横がUB・UB狭い・ホール狭い・階段下トイレ・和室は8畳欲しい
なんとも無茶な要望ばかりです・・
それをふまえて
要望事項はしっかり残されてます
NGは2階の収納が少ない・2階の西日対策・キッチンの上が風呂
クランク状の廊下?が無駄・・・
熱帯魚用の流しが欲しい
本当に無茶ばかりです。Iさんもこんな客の担当なんてと後悔したでしょう
次は
突然南入りの玄関にしたいなんて言ってしまいました(^_^;)
NGは玄関横UB・ホールが細長い・LD狭い・UB狭い
UPしたのは3枚ですが、この時点で確か5枚はあったはずです
この頃はまだ契約どころか、他メーカーとも引き合いをしていました
ですが、内容の濃い話をしていたのはSWHでしたし
設計・営業共に一番熱心だったのは間違いないです。
SWHに決めようと思ったのは、このころだったでしょうか。
それにしても この間取り図 平成18年6月17日って
もう1年以上前だな~
以上 間取り変遷1でした。不定期に間取り変遷2 3と続きます。
Iさんよりメールで来ました。
あくまで概算なのですが、約200万のup・・・・・・orz
ある程度覚悟はしていたのだが、ここまで行くとは・・・・
詳細としては
5t基礎から3t基礎への変更で40万
(これは仕方がないし、文字どうり家の土台なのでケチる訳にはいかない)
バルコニードアの防犯フィルム15万
(防犯対策としてなので、これも必用。我が家はBDが5枚なので
1枚あたり3万。少し高いか?)
モニエル瓦→陶器瓦で10万
外装材変更で12万等々でして、これといって目立つものはないのだが
いろいろと10万強の増額要因が積もり積もって160万。
あとは、我が家の遊びを入れた部分の1階洗面が約40万UP
こりゃ確実に予算こえてるぞ~
いやいよ本気でコストカットを考えないと・・・
